Your cart is currently empty.

Heavy Duty Aluminum Swing Gate Manual Operation - Ornamental Model HDSGO764
Free Delivery
Canada & USA
*Additional handling charges may apply*
-
- Durable Construction: Made from high-grade Steel and Aluminum, ensuring strength and longevity.
- Metal: Gate panels are made of aluminum alloy extrusions, ensuring strength, durability, and lightweight construction.
- Infill alternatives include chain links, ornamental pickets, and custom configurations.
- Adjustable diagonal ¼” cables provide zero to minimal sag.
- Design: Features an elegant design that enhances the visual appeal of any property.
- Tested Our gate panels, operators, and access controls are meticulously engineered and rigorously tested as integrated systems to ensure flawless performance in all weather conditions.
- Engineered The robust framework and the incorporation of additional cross-bracing enable these gates to support higher weights and withstand significant wind loads, making them some of the largest cantilever gates available in the industry.
- Smooth Operation: Equipped with a reliable cantilever system for smooth and effortless sliding.
- Weather-Resistant: Powder-coated finish provides excellent resistance to corrosion and harsh weather conditions.
- Low Maintenance: Designed for minimal upkeep, saving time and effort.
- Prices is not including the Electrical motores.
-
- Material: High-grade 6063-T6 aluminum alloy extrusions.
- Finish: Bare Aluminum or Powder-coated.
- Dimensions: Customizable to fit specific requirements.
- Operation: Manual Swinging.
- Colour Options: Available in multiple colours to match any aesthetic.
- Swinging Gates Systems complies with the latest industry safety standards (UL 325 and ASTM F2200).
- Download Specs and Detailed Drawings.
-
- Residential Properties: Enhance the security and curb appeal of homes and estates.
- Commercial Properties: Ideal for securing office buildings, retail spaces, and other commercial establishments.
- Industrial Sites: Provides robust security for factories, warehouses, and other industrial facilities.
- Public Spaces: Suitable for parks, schools, and other public areas requiring secure access control.
TAIMCO Heavy Duty Aluminum Swing Gate Manual Operation - Ornamental
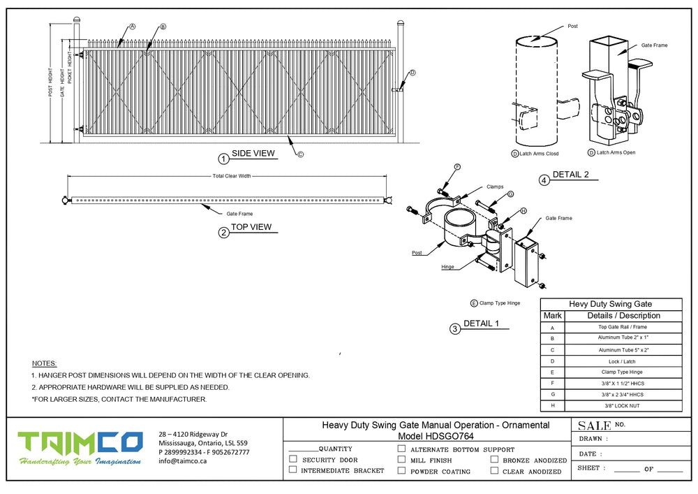
The Heavy Duty Aluminum Swing Gate, model HDSGCL764, manufactured by TAIMCO, will close openings of up to 24 feet for a single gate, and up to 48 feet with the use of a double gate.
TAIMCO’s Heavy Duty Swing Gate is ideal for locations where there is not enough room to roll or slide a gate (like alleys or where the access road is right along the perimeter). They are also ideal for the replacement of old steel gates, as they are much lighter and easier to operate both manually and automatically. They will never rust or “brown out” like the steel gates they are replacing, so they will always look good at an entrance.
Heavy Duty Swing Gates are fabricated from 6063-T6 aluminum alloy extrusions. The primary members (top and bottom) are rectangular-shaped in cross-section with outside vertical members “P” shaped in cross-section. Maintenance-free, sealed-bearing industrial-grade gate hinges are through-bolted to the gate frame. The gate includes cross bracing of 3/16” minimum diameter stainless steel cable to provide for vertical adjustments.
The Heavy Duty Swing Gate is available in either chain link or ornamental styles to match all popular fencing materials and colours. TAIMCO’s custom design shop can help design a swing gate to match any element on your site for beautiful security.
Key Features:
Specifications:
Applications:
Heavy Duty Swing Gates, TAIMCO Swing Gates, HDSGCL764 Swing Gates, Commercial Swing Gates, Industrial Swing Gates, High-Security Swing Gates, Aluminum Swing Gates, Weather Resistant Swing Gates, Maintenance-Free Swing Gates, Durable Swing Gates, Adjustable Bracing Swing Gates, Chain Link Swing Gates, Ornamental Swing Gates, Custom Swing Gates, Rust-Resistant Swing Gates, Easy to Operate Swing Gates, Heavy Duty Gate Hinges, Secure Swing Gates, TAIMCO Gate Systems, High-Performance Swing Gates, Why Choose TAIMCO's Box Frame Cantilever Slide Gate?
TAIMCO is committed to delivering high-quality, durable, and aesthetically pleasing gate solutions. The Fortress Box Frame Cantilever Slide Gate combines superior craftsmanship with advanced design to provide a reliable and attractive security solution for any property.
Trust TAIMCO for all your gate and fencing needs.
Dear valued customer,
We want to ensure your satisfaction every step of the way. As you may know, additional shipping charges are sometimes applied by third-party shipping companies for oversized or heavy items. These fees are based on factors like excess length, weight, and handling requirements.
Please rest assured that we do not profit from these charges; they are entirely passed on from the shipping companies. Our commitment to free shipping remains unwavering, and we appreciate your understanding.
Thank you for choosing us!
Email: info@taimco.ca
Get a quote in 24 hours!


