Your cart is currently empty.

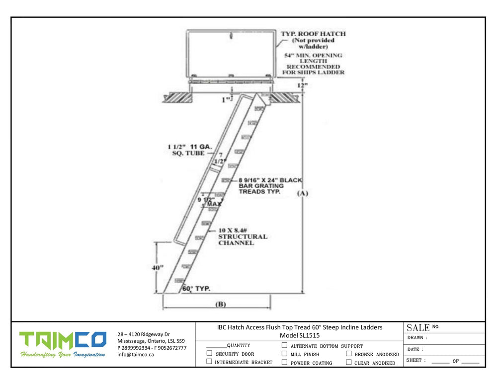
IBC Hatch Access Flush Top Tread 60° Steep Incline Ladders Model SL1515
Free Delivery
Canada & USA
*Additional handling charges may apply*
-
- Durable Construction: Made from heavy-duty structural steel or aluminum for maximum strength and longevity.
- Space-Efficient Design: Steep incline design optimizes space usage, ideal for tight areas.
- Safety Compliance: Meets IBC standards for safety and accessibility.
- Customizable: Available in various sizes and finishes, including powder-coated and galvanized options.
- Easy Assembly: Bolt-together assembly for quick and hassle-free installation.
- Safety Features: Equipped with non-slip bar grating treads and welded handrails.
-
- Material: Heavy-duty structural steel or aluminum
- Finish Options: Powder-coated (Gray, Black, Blue, White, Safety Yellow) or hot-dipped galvanized
- Incline Angles: 60° and 68°
- Tread Width: Standard 24" wide treads, customizable upon request
- Handrail: Welded handrails of 1 1/2" square tubing
- Standard 24" wide treads, 27" overall stair width.
- Tread depth is 6".
- 50° - 70° special inclines available upon request.
- Deck Surface: Non-slip bar grating treads
- Dimensions: Customizable to meet specific height requirements
-
- Industrial Facilities: Ideal for factories, warehouses, and manufacturing plants.
- Commercial Buildings: Suitable for office buildings, shopping centers, and public facilities.
- Construction Sites: Temporary or permanent access solutions for multi-level construction projects.
- Public Infrastructure: Used in public buildings, transportation hubs, and other high-traffic areas.
-
- Email: Info@taimco.ca
- Phone: (289)999-2334
- Request Quote
IBC Hatch Access Flush Top Tread 60° Steep Incline Ladders
Our Hatch Access Flush Top Tread Ladders are designed for industrial and commercial environments where space efficiency and safety are critical. Available in 68° steep inclines, these ladders provide reliable access solutions for maintenance and storage areas where standard stairs are not feasible.
Key Features
Specifications
Applications
IBC Hatch access ladder, Flush top tread ladder, Steep incline ladder, Industrial access ladder, IBC compliant ladder, Heavy-duty access ladder, Customizable access ladder, Prefabricated ladder, Structural steel ladder, Space-efficient ladder design.
Specification :
Contact Us
Dear valued customer,
We want to ensure your satisfaction every step of the way. As you may know, additional shipping charges are sometimes applied by third-party shipping companies for oversized or heavy items. These fees are based on factors like excess length, weight, and handling requirements.
Please rest assured that we do not profit from these charges; they are entirely passed on from the shipping companies. Our commitment to free shipping remains unwavering, and we appreciate your understanding.
Thank you for choosing us!
Email: info@taimco.ca
Get a quote in 24 hours!






