Your cart is currently empty.

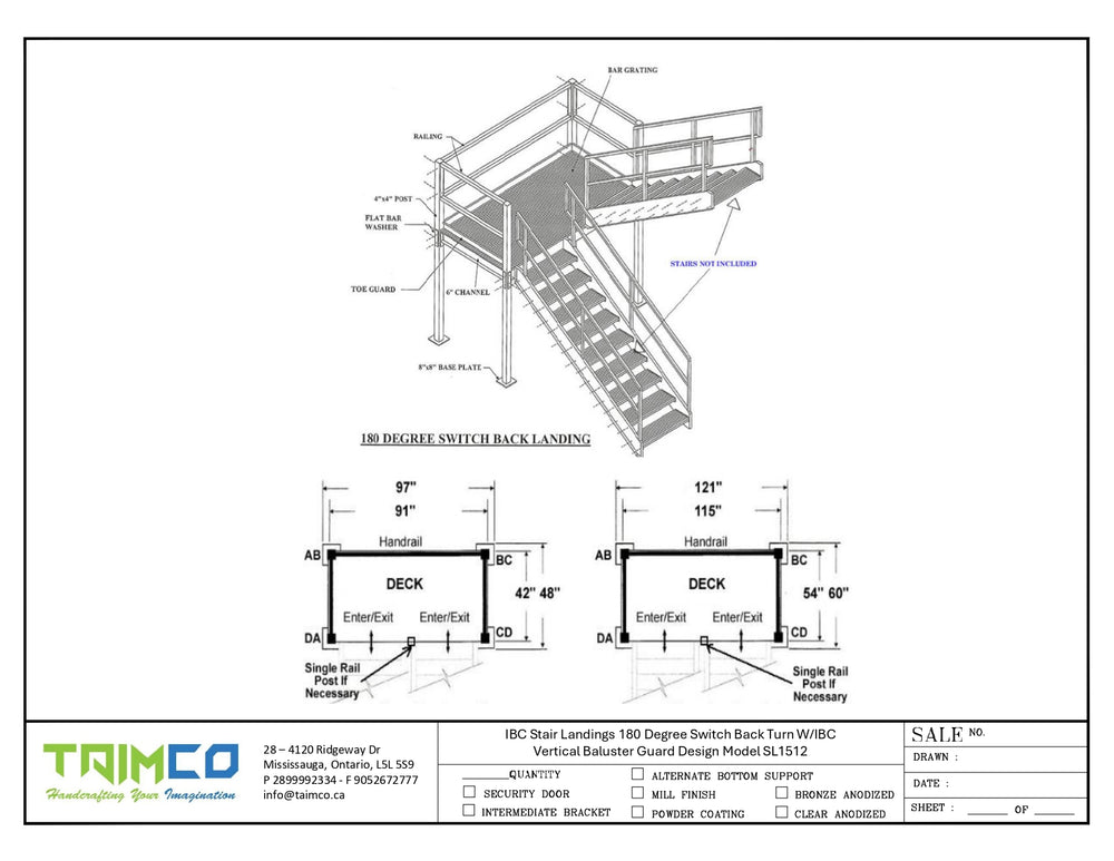
IBC Stair Landings 180 Degree Switch Back Turn W/IBC Vertical Baluster Guard Design Model SL1512
Free Delivery
Canada & USA
*Additional handling charges may apply*
-
- IBC Compliance: Fully compliant with International Building Code (IBC) standards for safety and accessibility.
- Durable Construction: Made from heavy-duty structural steel for enhanced strength and durability.
- Space-Efficient Design: 180-degree switchback turn design maximizes space utilization.
- Customizable Options: Available in various sizes and finishes, including powder-coated and galvanized options.
- Easy Assembly: Bolt-together assembly for quick and straightforward installation.
- Safety Features: Equipped with IBC-compliant vertical baluster handrails and non-slip surfaces.
-
- Industrial Facilities: Perfect for factories, warehouses, and manufacturing plants.
- Commercial Buildings: Suitable for office buildings, shopping centers, and public facilities.
- Construction Sites: Ideal for temporary or permanent stair solutions in multi-level construction projects.
- Public Infrastructure: Used in public buildings, transportation hubs, and other high-traffic areas.
-
- Material: Heavy-duty structural steel
- Finish Options: Powder-coated (Gray, Black, Blue, White, Safety Yellow) or hot-dipped galvanized
- Dimensions: Customizable to meet specific requirements
- Compliance: IBC standards
- Handrail: IBC-compliant vertical baluster handrail guard
- Deck Surface: Non-slip bar grating
-
- Download Specification.
- Landing Width 91" x Depth 42" ( For 36" Threads ).
- Landing Width 115" x Depth 54" ( For 48" Threads ).
-
- Email: Info@taimco.ca
- Phone: (289)999-2334
- Request Quote
IBC Stair Landings 180 Degree Switch Back Turn W/IBC Vertical Baluster Guard Design
IBC Stair Landings with a 180 Degree Switch Back Turn and IBC Vertical Baluster Guard Design are specifically engineered to meet stringent building codes and safety standards. These stair landings are ideal for industrial and commercial environments, providing a robust and space-efficient solution for vertical navigation. The switchback design allows for a 180-degree turn, optimizing space usage while ensuring safety and compliance.
Key Features
Applications
Specifications
IBC Stair Landings,180 Degree Switch Turn Design, IBC Vertical Baluster Guard, Industrial Stair Landings, IBC Compliant Stair Landings, Customizable Stair Landings, Prefabricated Stair Landings, Structural Steel Stair Landings, Space-Efficient Stair Design, Bolt-Together Stair Assembly.
Specification :
Contact Us
Dear valued customer,
We want to ensure your satisfaction every step of the way. As you may know, additional shipping charges are sometimes applied by third-party shipping companies for oversized or heavy items. These fees are based on factors like excess length, weight, and handling requirements.
Please rest assured that we do not profit from these charges; they are entirely passed on from the shipping companies. Our commitment to free shipping remains unwavering, and we appreciate your understanding.
Thank you for choosing us!
Email: info@taimco.ca
Get a quote in 24 hours!



