Your cart is currently empty.

Manual Swing A-Series Tubular Galvanized Steel Double and Single Barrier Gate | Made in Canada– Model # MSG893
Free Delivery
Canada & USA
*Additional handling charges may apply*
-
- Versatility: These gates serve multiple purposes, securing driveways, gas/oil well drives, construction sites, and even dumpster enclosures.
- Options: Choose from single configurations or explore our Steel and color-coated variants.
- Customization: We accommodate custom sizes and configurations upon special request. Feel free to reach out to our sales representatives for personalized solutions.
- Custom designs are available upon request; customers must prepare their drawings.
- Compatible with a variety of gate hinges, latches, and gate openers.
- Vertical bracing varies per gate width.
- Post sizes vary per gate width.
- Rigid construction of premium 2" x 2" Sch40 Steel.
- The plates / Posts, Caps, Hinges, and latches are Included.
-
- Our gates are meticulously crafted to fit the opening size, whether it’s the space between hinge posts or the hinge and latch post.
- If you require a specific “finish size,” we can tailor the gate accordingly.
- Please note that actual designs may vary based on the gate’s dimensions.
-
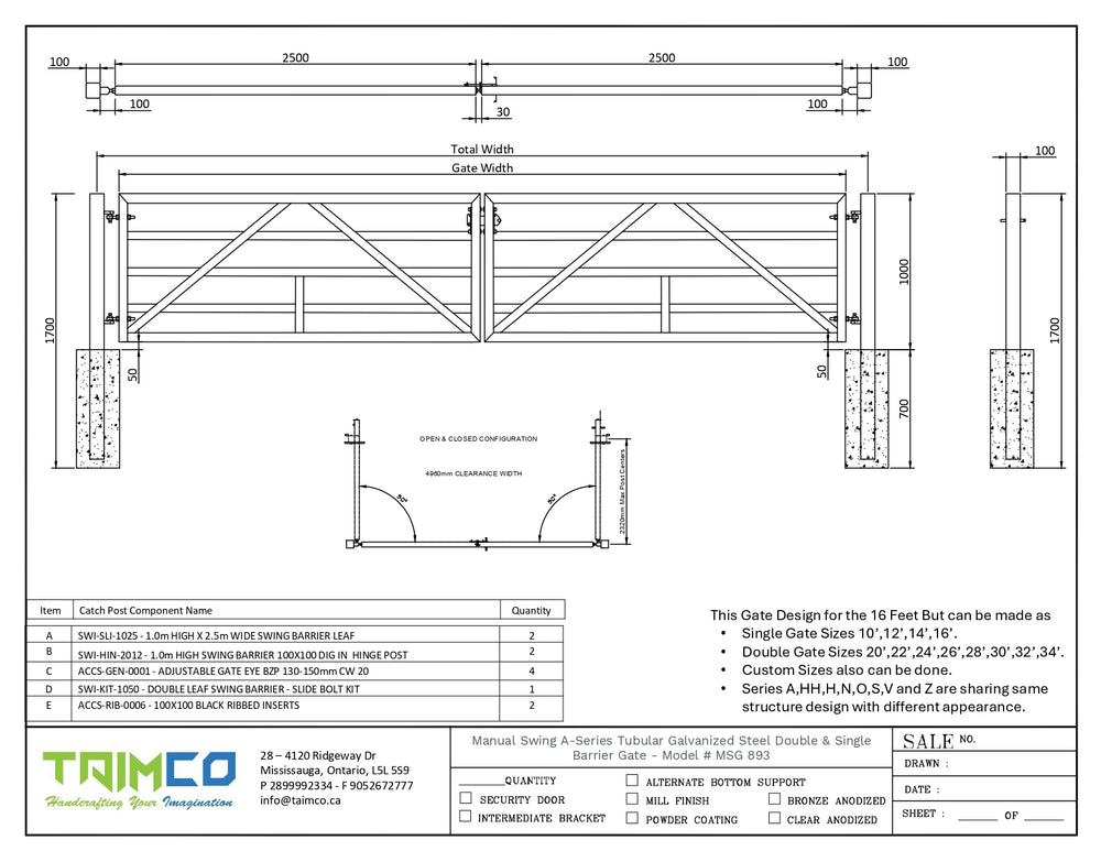
- Single A-Series Galvanized Tubular Barrier Gate - Available In 10', 12', 14', 16', 18', 20' Widths (One Gate Leaf’s).
- Double A-Series Galvanized Tubular Barrier Gate - Available In 20', 22', 24', 26', 28', 30', 32', 24', 36', 38', 40' Widths (Two Gate Leaf's).
- Two Galvanized Hinge Posts
- Post Caps for Posts.
- Hinges and Gate Latch.
- 4' High Singe or Double H-Series Tubular Galvanized Barrier Gate.
- 4" x 4" x 8' Galvanized Sch40 Posts.
- 4" x 4" Galvanized Post Caps for Posts.
- 4" Malleable Butt Hinges & Gate Latch.
- Download Specification and Dimensions
-
- Different colors than Galvanized Finish are available for an extra $399.
- The lock and unlock box can be added for $399.
- Prices are for Zinc Prime and powder coat paint , please add $ 1250 for galvanizing if needed
- This product is recommended to be installed by a professional team.
- Custom orders cannot be cancelled, returned, or refunded after purchase.
- All the custom metal product orders are final sales.
- Gates may need minor touch-up paint due to the nature of shipping.
- For more information, please email us at info@taimco.ca
A-Series Tubular Galvanized Barrier Gates Feature:
A-Series Tubular Galvanized Double Barrier Gates are meticulously designed for a wide range of applications, including agricultural, residential, and commercial settings. Crafted from high-quality Steel, these gates offer exceptional corrosion resistance, making them ideal for locations near both fresh and saltwater environments.
Important Note on Sizing and Design:
Specification
These tubular Galvanized Double Steel and Single Barrier Gardens, Parks, or Building Parking Gates are perfect for use in residential, commercial, Industrial, Factory, and agricultural, applications. these barrier gates are perfect for locations with fresh and salt water. These gates can secure driveways, gas/oil well drives, construction sites, dumpster enclosures, and many others!
These Gates are available in Double or single configurations and Galvanized or powder-coated options. Custom-built sizes and configurations are available as well. Please contact us for all custom-size requests.
The sizes listed are built to fit the whole opening size, outside to outside the posts on both sides.
The Gate Wing Height is 4 Feet at the Post Side and less than 1 foot at the opposite wing side.
Note:
The following parts are not included in the price.
Dear valued customer,
We want to ensure your satisfaction every step of the way. As you may know, additional shipping charges are sometimes applied by third-party shipping companies for oversized or heavy items. These fees are based on factors like excess length, weight, and handling requirements.
Please rest assured that we do not profit from these charges; they are entirely passed on from the shipping companies. Our commitment to free shipping remains unwavering, and we appreciate your understanding.
Thank you for choosing us!
Email: info@taimco.ca
Get a quote in 24 hours!









